Сдается помещение 309 м². - цена 260 ₽ , ул. Артема, Панфилова в Ворошиловском р-н.


Аренда помещения Ворошиловский район, улица Артема, ориентир Панфилова, в Ворошиловском районе, Донецка, ДНР - Донецкой Народной Республики


309 м²
Общая
1 из 0
Этаж

Обьявление по недвижимости поможет вам Снять помещение в Ворошиловском районе, Донецка, ДНР - Донецкой Народной Республики


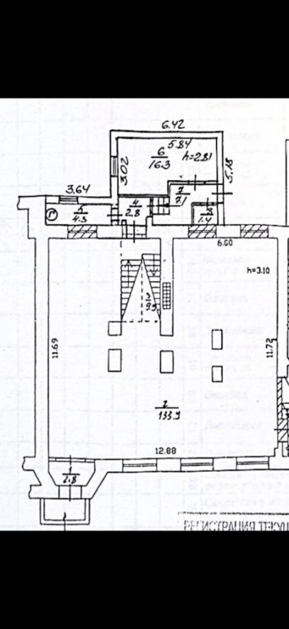
Описание помещения

АРЕНДА фасадного помещения с отличным пешеходным и автомобильным трафиком по ул.Артема в г.Донецке. Отлично зонированное помещение включает в себя: просторный торговый зал,складское помещение, кабинеты,два санузла,котельная.

Агентство 21 Век
+7 (949) 337-53-97+7 (949) 646-05-57



Подписывайтесь, если нужно быть в курсе последних объявлений по арендепомещений в Ворошиловском р-н. г. Донецка ДНР


Активность объявления:

260
1 ₽ за м²

Агентство 21 Век
+7 (949) 337-53-97+7 (949) 646-05-57

ID объявления № 1026886
Просмотров в поиске: 36435
Просмотров подробно: 37
Обновлен:  2025-11-26 14:26:47
Добавлен:  2025-11-26 14:26:47

Понравился объект? Поделитесь с близкими

Для профессионалов

«Топы и автоподнятия на Domick.ru и Kupitvdnr.ru»

«Профпоиск»



Топ и автоподнятие, разместив объявление в рекламном кабинете Realbase.estate оно автоматически попадает на 3 сайта сразуRealbase.estate, Domick.ru, Kupitvdnr.ru


На Realbase.estate можно настроить топы и автоподнятия на Realbase.estate, Domick.ru, Kupitvdnr.ru

Подробнее тут


Риелторы с доступом к «Профпоиск» могут предлагать клиентам больше вариантов недвижимости


Бонусом выделяем все ваши новые объявления на Realbase.estate, функция работает бессрочно, на Domick.ru и Kupitvdnr.ru на три дня.


Это поможет вам охватить широкую аудиторию и найти новых клиентов.


C 2010 года Realbase.estate — надёжный источник информации и эффективный инструмент для продвижения объявлений


Мы очень ценим, что вы уделили нам время. Вы великолепны!


Топовые объявления



Район: Калининский
Комнат: 1
ID: 1024915
Рейтинг

Описание:

Продается квартира 1 комнатная на Грузии.проспект Ильича.Грузия.Состояние обычное жилое.Документы готовы.Ключи в агентстве.Звоните


Дата добавления: 23.10.2025

Район: Ленинский
Комнат: 6
ID: 1024368
Рейтинг

Описание:

Эксклюзив Продаётся новый дом европейского типа (2021 г.), построенный для себя Никто не жил. Дом строился качественно и с душой — от инженерных коммуникаций до отделочных материалов. Требует небольших доработок, поэтому можно завершить под свой вкус. Локация Ленинский р-н, Соловки, 3-5 мин. ОЦКБ, Парк славянской культуры Характеристики • Два жилых этажа + утеплённый цоколь с окнами • Участок ровный, сухой • Коробка отстоялась: 2–3 года до отделки + 2–3 года после • Крыша — двускатная металлочерепица, кирпичный дымоход • Новая стропильная система, утеплённый чердак с освещением • Лестница с «парящими» ступенями из дуба/ясеня (новые, в упаковке) • Подоконники — натуральный гранит с синими кристаллами лабрадорита Инженерия и коммуникации • Электрика — новые усиленные кабели • Интернет LAN 6 класса + оптоволокно в стены ко всем ТВ-точкам • Автоматический стабилизатор напряжения • Водопровод и канализация — новые по дому и участку до колодца • Капитальный ремонт колодца • Центральная вода • Система рециркуляции ГВС — горячая вода сразу на всех точках, даже на 2 этаже • Септик новый, 3‑камерный (КС 10‑9 + люки 0.3), без откачки 2,5–4 года • Газовое автономное отопление • Котёл Vaillant 28 кВт (дымоходный) + бойлер косвенного нагрева Vaillant 200 л • Водяной тёплый пол на всём первом этаже и в санузле мастер-спальни на 2 этаже • Новые радиаторы по всему дому Планировка 1 этаж: • Прихожая с декоративной подсветкой • Кабинет / спальня • Просторная гостиная, объединённая с кухней (место под декоративный камин) • Гостевой санузел (второй санузел — подготовлен, плитка в наличии) 2 этаж: • Мастер-спальня с гардеробной и собственным санузлом (ванна, душевая кабина, тропический душ, подвесной унитаз, тёплый пол, окно) • Вторая спальня / детская • Люк на утеплённый чердак с освещением Цоколь: • 2 жилые комнаты с окнами • Котельная • Просторная зона для хранения вещей • Утеплён Пеноплексом, сухой и тёплый • Закуплен керамогранит большого формата на весь этаж Дополнительно • Пристройка под кухню-столовую с выходом на террасу • Терраса на крыше пристройки — с живописным видом, можно обустроить зону отдыха • Фундамент и стены пристройки отстоялись 3 года • Залит фундамент под летнюю веранду у входа • Входная дверь — новая стальная с вертикальным остеклением • Система вневедомственной охраны с новым оборудованием • Оставляем стройматериалы: гипсокартон (40 листов), плинтуса, штукатурка, леса, металл, радиаторы, стекловата и др. Почему стоит обратить внимание • Новый, тёплый, просторный, светлый • Качественное строительство, продуманные инженерные решения • Почти все работы завершены — остались только финишные доработки • Отличная планировка и возможность адаптировать под себя Дом строили под себя, с любовью и душой, чтобы жить в нём долгие годы. Но обстоятельства изменились — сейчас живём и работаем в Москве, и знаем, что не будем переезжать обратно. Хотим, чтобы этот дом обрёл новых заботливых хозяев, которым он принесёт радость, тепло и много счастливых лет жизни.


Дата добавления: 27.11.2025

Район: Калининский
Комнат: 2
ID: 1026837
Рейтинг

Описание:

Продаётся двухкомнатная квартира в Калининском районе, по улице Антипова, напротив ДС Дружба. Дом кирпичный, комнаты смежные. Окна пластик, балкон пластик, заменены радиаторы и подводы к ним. Квартира чистая, светлая, но косметический ремонт не будет лишним. Вода по графику есть всегда. Есть место для установки водонакопительного бака. Есть место для обустройства гардеробной. В квартире остаётся много хорошей техники : холодильник"Bosch", стиральная машина "Siemens", фильтр на воду "Zepter", газовая печка "Gorenje" посудомоечная машина "Electrolux", кондиционер "Mitsubishi". Документы готовы, собственник в городе. Реальному покупателю хороший торг.


Дата добавления: 27.11.2025

Район: Калининский
Комнат: 1
ID: 1026805
Рейтинг

Описание:

Сдам 1-к квартиру, (маг.Молдова, рест. Какаду). Квартира в хорошем жилом состоянии, чистая, окна м/пл., угловая (теплая), заменены трубы отопления (новые радиаторы), установлен газовый счетчик, хорошее расположение дома, вся инфраструктура в пешей доступности, тихий двор, хорошие соседи. Показы по предворительной договоренности, звоните.


Дата добавления: 23.11.2025

Район: Буденновский
Комнат: 2
ID: 1025816
Рейтинг

Описание:

В продаже 2к. квартира первый этаж, высокий цоколь (фактически второй этаж), общая площадь 48 кв. Квартира в жилом состоянии, но требует ремонта, тамбур на две квартиры, по графику стабильно, хорошие соседи. Выгодное расположение дома, в шаговой доступности рынок, магазин, школа, детсад, транспортная развязка. Документы РФ, собственник на сделке, о прописанных, долгов нет. За более подробной информацией звоните, ответим на Ваши вопросы.


Дата добавления: 09.10.2025

Район: Буденновский
Комнат: 2
ID: 1026526
Рейтинг

Описание:

Эксклюзив Светлая и уютная квартира в Будённовском районе — ваше новое жильё! Агентство недвижимости «Абсолют сервис» предлагает квартиру в Будённовском районе. Преимущества: — квартира в жилом состоянии; — остаётся мебель и техника; — светлая и уютная квартира. С агентством «Абсолют сервис» вы сможете найти идеальное жильё и сделать свою жизнь комфортнее!


Дата добавления: 28.11.2025



Похожие объявления