Профпоиск актуальные собственники
Автопубликация Kupitvdnr.ru и Domick.ru
Топы и автоподнятия на 3 сайтах
Архив собственников со всех источников
Автоматизация рекламы на 3 сайтах
Заявки от клиентов на куплю / сниму
Презентации в один клик
Лейблы Профи и Топ.
Бонус выделение всех объявлений
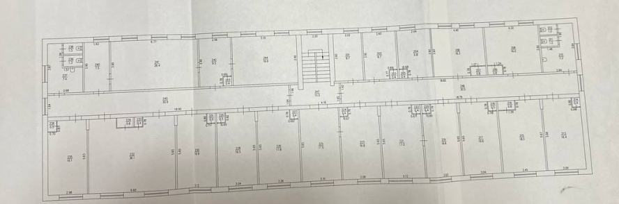
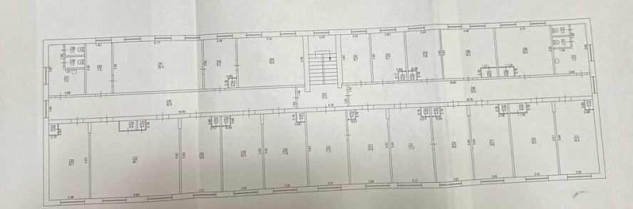
Предлагается в аренду отдельно стоящее здание в центре города Снежное. 2-х этажное здание: 1-й этаж 500 - кв. м, 2-й этаж - 500 кв м + подвальное помещение 500 кв. м (с возможностью установки емкостей под запас воды любого количества). Заведено электричество мощностью 150 кВт. Установлены новые пластиковые окна. Возможна перепланировка помещений в счет аренды, ремонт за счёт Арендатора. Пожарной сигнализации пока нет, установят после того, как будет произведён ремонт под нужны арендатора. Вода по графику. Центральная канализация. Подъезды к зданию асфальтированные, есть своя территория 600 кв.м. Рядом находятся жилые микрорайоны, школа, садики, центральная площадь города, стоматология. Предложение подходит для рассмотрения под банковские услуги, сетевые магазины, торговые площади. Цена аренды составляет: 1 500 ₽/кв. м. + оплата коммунальных услуг отдельно. Технический характеристики помещения и земельного участка прилагаются. Более детальная информация по телефону.
Подписывайтесь, если нужно быть в курсе последних объявлений по продажепомещений в Донецкая область ДНР
 
 
 
 
 
Для профессионалов
«Топы и автоподнятия на Domick.ru и Kupitvdnr.ru»
«Профпоиск»
Топ и автоподнятие, разместив объявление в рекламном кабинете Realbase.estate оно автоматически попадает на 3 сайта сразуRealbase.estate, Domick.ru, Kupitvdnr.ru
На Realbase.estate можно настроить топы и автоподнятия на Realbase.estate, Domick.ru, Kupitvdnr.ru
Риелторы с доступом к «Профпоиск» могут предлагать клиентам больше вариантов недвижимости
Бонусом выделяем все ваши новые объявления на Realbase.estate, функция работает бессрочно, на Domick.ru и Kupitvdnr.ru на три дня.
Это поможет вам охватить широкую аудиторию и найти новых клиентов.
C 2010 года Realbase.estate — надёжный источник информации и эффективный инструмент для продвижения объявлений
Мы очень ценим, что вы уделили нам время. Вы великолепны!
Топовые объявления
| Район: | Буденновский | 
| Комнат: | 3 | 
| ID: | 1026280 | 
| Рейтинг | 
Трёхкомнатная квартира в Будённовском районе — простор и комфорт для вашей семьи! Агентство недвижимости «Абсолют сервис» предлагает просторную 3-комнатную квартиру в сталинском доме. Общая площадь — 75 м2. Преимущества: — раздельные комнаты площадью 19 м2, 18 м2 и 15 м2; — высота потолков — 3 м; — автономное отопление; — утеплённый фасад; — вода доступна круглосуточно, есть бак в подвале на 0,5 т воды; — кондиционер — летом в квартире не жарко; — металлическая дверь и решётки; — был проведён капремонт: установлены пластиковые трубы, медная проводка, сигнализация; — есть кладовка в подвале; — тихий и спокойный район. С агентством «Абсолют сервис» вы сможете найти идеальное жильё и сделать свою жизнь комфортнее!
Дата добавления: 29.10.2025
| Район: | Куйбышевский | 
| Комнат: | 5 | 
| ID: | 1024633 | 
| Рейтинг | 
Добротный дом в хорошем, жилом состоянии.Все фото реальные. Более детально по телефону.
Дата добавления: 17.10.2025
| Район: | Ворошиловский | 
| Комнат: | 3 | 
| ID: | 1026330 | 
| Рейтинг | 
Сдам 3 ком. кв. в центре города, Ворошиловский район, ул. Университетская, ориентир- Изумруд, парк Кованых фигур, кинотеатр Звездочка, ЭПФ. В квартире есть вся необходимая мебель, холодильник, стиральная машинка, микроволновка, бойлер. Спальные места- двуспальная кровать, диван, одноместная кровать. Вода идет по графику. Берм всех. Дополнительные фото вышлю по запросу Цена 35000 руб, плюс коммунальные, залог, услуги АН +79490895300 +79493640374
Дата добавления: 31.10.2025
| Район: | Кировский | 
| Комнат: | 1 | 
| ID: | 1026199 | 
| Рейтинг | 
Продам 1 комнатную квартиру, Текстильщик, возле МФЦ, ул. В. Терешковой! 1/10, жилое состояние, 36/18/9, чешский проект.
Дата добавления: 24.10.2025
| Район: | Ворошиловский | 
| Комнат: | 2 | 
| ID: | 1026289 | 
| Рейтинг | 
Сдается Vip 2 ком вартира в центре города , ул Артема гастроном Москва Ворошиловский район Общей площадью 50 м2 в кирпичном доме на 5 этаже ждёт своих жильцов. Балкон с тёплым полом выходит на улицу Артёма. Кухня площадью 8 м2 оснащена всем необходимым: есть телевизор, микроволновая печь, чайник, духовка, газовая плита и вся нужная посуда. Большое окно выходит во двор. В ванной комнате вас ждёт ванна и большое зеркало. Автономное отопление обеспечит комфорт в любое время года, а насос и накопительный бак на 500 л воды гарантируют бесперебойное водоснабжение. Район с развитой инфраструктурой: рядом супермаркет, продуктовые магазины, кофейня, музыкальная школа. В пешей доступности — школы, вузы, площадь Ленина, административные учреждения и остановки общественного транспорта. дополнительно фото вышлю Оплата только по факту заселения Смотрите другие объекты в моем профиле
Дата добавления: 29.10.2025
| Район: | Ленинский | 
| Комнат: | 3 | 
| ID: | 1026287 | 
| Рейтинг | 
Продается трёх комнатная квартира в Ленинском районе! Центр города, до горсада, бульвара Пушкина 5 минут на транспорте, 10 минут пешком. Тихий приятный двор, собственное парковочное место, развитая инфраструктура, в шаговой доступности супермаркеты и парк Славянской культуры! В квартире небольшая кухня, со всей необходимой фурнитурой, ванна и туалет совмещены, просторный коридор, зал проходной в две отдельные комнаты, также есть небольшой гардероб(отдельная комната). Собственный подвал площадью 40м2(вход из квартиры), сейчас не используется, но можно сделать склад или спортзал. Квартира приятная, уютная, хорошие соседи и отличный район. Продается в связи с переездом в дом за город!
Дата добавления: 29.10.2025
Похожие объявления
| Район: | Донецкая область | 
| Комнат: | 0 | 
| ID: | 1024441 | 
| Рейтинг | |
| Агентство | Новосел | 
Продам прекрасный большой кирпичный дом 210 м. кв. на Белосарайской Косе, 2 уровня , три спальни ,веранда , гараж , 6 соток приватизированной земли ,внутри отделка дома дорогостоящими породами дерева , 2 с/у. , электроотопление , отличное состояние , от моря 2 минуты , рядом большой продуктовый магазин.
Дата обновления: 24.10.2025
| Район: | Донецкая область | 
| Комнат: | 0 | 
| ID: | 1020322 | 
| Рейтинг | |
| Агентство | 21 Век | 
Продажа действующего помещения, в 3 км. от г. Старобешево.В ангаре установлены пластиковые окна, теплый пол, есть комната под кабинет. Вокруг здания поля. Есть возможность расширения и дополнительного строительства. Присутствует торг по стоимости.
Дата обновления: 16.10.2025