Продается помещение 1225 м². - цена 31 000 000 ₽ , Строй Деревня в Куйбышевском р-н.


Продажа помещения Куйбышевский район, ориентир Строй Деревня, в Куйбышевском районе, ДНР - Донецка, Донецкой Народной Республики


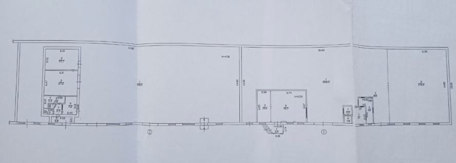
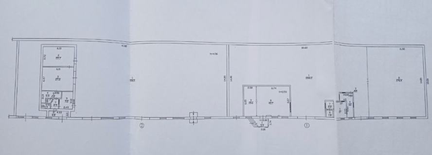
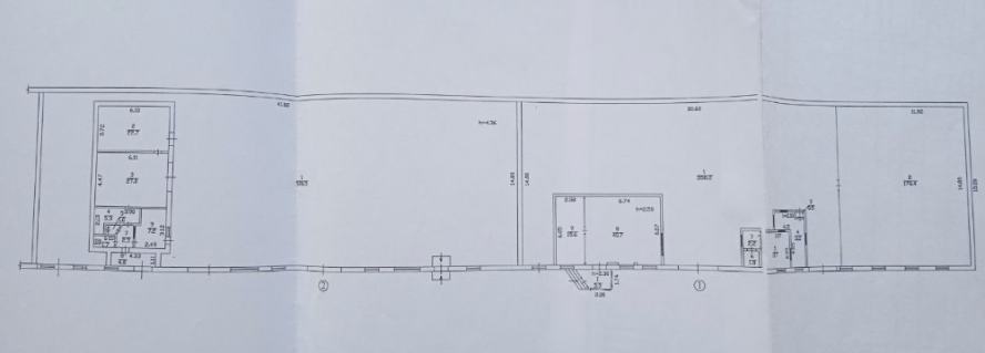
1225 м²
Общая
1 из 0
Этаж
Тип стен:  Шлакоблочный
Коммуникации:  Асфальтированная дорога; Электричество

Обьявление по недвижимости поможет вам Купить помещение в Куйбышевском районе, ДНР - Донецка, Донецкой Народной Республики


Описание помещения

Предлагается на продажу складское помещение, Куйбышевский район, ориентир Строй Деревня Общая площадь 1225кв.м. Склад сухой, возможно под хранение продуктов питания, кормов, столярных изделий, медикаментов и т.д. Участок 34 сотки.

Посмотреть все объявления: АН Первый Риелторский Центр


Подписывайтесь, если нужно быть в курсе последних объявлений по продажепомещений в Куйбышевском р-н. г. Донецка ДНР


Активность объявления:

31 000 000
25 306 ₽ за м²


ID объявления № 1023765
Просмотров в поиске: 3632451
Просмотров подробно: 10204
Обновлен:  2026-03-11 13:30:21
Добавлен:  2026-03-11 13:30:21
Понравился объект? Поделитесь с близкими
Недвижимость Донецка ДНР Автоматизация рекламы

Недвижимость Донецка ДНР Автоматизация рекламы

Для профессионалов

«Топы и автоподнятия на Domick.ru и Kupitvdnr.ru»

«Профпоиск»



Топ и автоподнятие, разместив объявление в рекламном кабинете Realbase.estate оно автоматически попадает на 3 сайта сразуRealbase.estate, Domick.ru, Kupitvdnr.ru


На Realbase.estate можно настроить топы и автоподнятия на Realbase.estate, Domick.ru, Kupitvdnr.ru

Подробнее тут


Риелторы с доступом к «Профпоиск» могут предлагать клиентам больше вариантов недвижимости


Бонусом выделяем все ваши новые объявления на Realbase.estate, функция работает бессрочно, на Domick.ru и Kupitvdnr.ru на три дня.


Это поможет вам охватить широкую аудиторию и найти новых клиентов.


C 2010 года Realbase.estate — надёжный источник информации и эффективный инструмент для продвижения объявлений


Мы очень ценим, что вы уделили нам время. Вы великолепны!


Топовые объявления



Размещенно: Абсолют сервис
Район: Калининский
Комнат: 3
ID: 1028156
Рейтинг

Описание:

Эксклюзив Квартира с видом на паркГуливер : простор и уют в каждом уголке Откройте для себя пространство, где комфорт встречается с эстетикой. Светлая квартира ждёт своих новых хозяев здесь каждый день будет начинаться с приятных эмоций. Из окон открывается живописный вид на паркГуливер , что позволяет наслаждаться природной гармонией, не покидая уютных стен дома. Квартира представлена в отличном состоянии всё, что вы видите на фотографиях, остаётся для новых владельцев. Продуманная планировка создаёт ощущение простора и свободы, а естественное освещение наполняет помещения теплом и уютом. Это идеальное место для тех, кто ценит баланс между городской динамикой и спокойствием природы. Здесь вы найдёте всё необходимое для комфортной жизни: функциональные зоны, продуманные до мелочей, и атмосферу, располагающую к отдыху и творчеству. Представьте, как будете проводить вечера у окна, наблюдая за сменой сезонов в парке, или встречать утро с чашечкой кофе, любуясь зелёными пейзажами. Не упустите шанс сделать этот уголок своим квартира готова стать вашим новым домом, где будут создаваться тёплые воспоминания.


Дата добавления: 16.04.2026

Размещенно: Новый Дом
Район: Калининский
Комнат: 4
ID: 1029735
Рейтинг

Описание:

В продаже 4к. квартира (бул.Шахтостроией). Квартира требует ремонта, теплая, не угловая. В шаговой доступности вся инфраструктура. Документы РФ, прописанных нет, долгов по коммунальным нет, собственник на сделке. Показы по предвариьной договоренности, звоните.


Дата добавления: 03.04.2026

Размещенно: Виконт
Район: Кировский
Комнат: 2
ID: 1029977
Рейтинг

Описание:

Продается отличная 2 квартира по улице В. Терешковойдом№ 29 возле Первого Республиканского супермаркета. Окна выходят во двор. Квартира не угловая.8 этаж9 этажного дома. Квартира продается с мебелью и бытовой техникой. Заходи и живи Документы готовы. Собственник в Донецке. Вода поднимается(насос в подъезде)


Дата добавления: 16.04.2026

Размещенно: Каприз
Район: Калининский
Комнат: 1
ID: 1029770
Рейтинг

Описание:

ПРОДАЖА 1 к. кв. Калининский р-н, ул. Владычанского/Краснофлотская. Ориентир- новый парк Гуливер. Место расположения- одно из главных преимуществ этой квартиры. Отсюда удобный выход как на б. Шевченко, так и на пр. Ильича. Все рядом- остановки, магазины, супермаркет, рынок, спортклуб , банк, школа, садик, поликлиника, новый большой парк с игровыми и спортивными площадками. Кроме того, в этом районе сосредоточено большое количество высших учебных заведений- Мединститут и Медколледж, Торговый институт (ДОННУЭТ им. М. Туган-Барановского) и Педагогический колледж. Так что, если вы планируете, что ваш ребенок станет студентом одного из этих вузов- добро пожаловать). Квартирарасположена на 1этаже 5этажногодома - и это тоже ее большой плюс. В квартире вода каждый деньхороший напор , кроме того, нет необходимости подниматься по ступенькам на высокие этажи. Это идеально подойдет пожилым и маломобильным людям. Квартира в отличном состоянии, продается с мебелью и техникой, так что можно сразу зайти и жить или сдавать в аренду. Остается кухня, холодильник, стиральная машинка, 2 кондиционера, евизор, диван, шкафы и тд. Документы РФ готовы, собственник на сделке.


Дата добавления: 14.04.2026

Размещенно: Абсолют сервис
Район: Киевский
Комнат: 1
ID: 1029904
Рейтинг

Описание:

Эксклюзив. Агентство недвижимости «Абсолют Сервис» предлагает к продаже 1‑комнатную квартиру на ул. Университетской (ориентир — «Донецк Сити»). Квартира расположена на 5‑м этаже 5‑этажного дома. Проведены ремонтные работы: заменены окна, двери, электрика, батареи отопления, санузел почти готов. Обеспечено стабильное водоснабжение. Один собственник, полная юридическая чистота сделки. Благодарим за внимание


Дата добавления: 14.04.2026

Размещенно: Доверие-Сервис
Район: Ленинский
Комнат: 1
ID: 1026668
Рейтинг

Описание:

Квартираухоженная и чистаяв кирпичном доме. Установлены пластиковые окна и надёжная металлическая дверь. В квартире есть горячая вода от газовой колонки. Рядом расположены детский сад, школа, супермаркет, два парка и Соборный храм святых Петра и Февронии. Все документы подготовлены. Звоните:


Дата добавления: 15.04.2026

Недвижимость а Автоматизация рекламы
Недвижимость а Автоматизация рекламы
 


Топ

Агентство недвижимости Don Estate
Don Estate
+79491053535

Топ

Агентство недвижимости Активком
Активком
+79493410858

Топ

Агентство недвижимости ЛюксДом
ЛюксДом
+79494965680

Топ

Агентство недвижимости Доверие-Сервис
Доверие-Сервис
+79493524020, +79493174049



Похожие объявления



Район:

Куйбышевский

Комнат: 0
ID: 96657
Рейтинг

Описание:

Продаётся земельный участок в перспективном районе города! Участок расположен на тихой улице, но при этом имеет отличную транспортную доступность и развитую инфраструктуру. Рядом находятся ДК, парк, школы, рынок и остановки общественного транспорта. Расстояние до Дома Правительства составляет всего 3,5 км. Это делает участок привлекательным для тех, кто ценит комфорт и удобство городской жизни, но хочет иметь свой собственный уголок природы. На участке уже имеется собственный колодец с городской водой, а также заведено электричество 380 В. Участок ровный, прямоугольной формы и имеет большую фасадную часть. Покупка участка в данной геолокации является выгодным вложением, так как стоимость земли в этом районе будет только расти. Участок находится во владении более 10 лет, все документы российского образца. Бонусом к участку идёт полностью готовый проект для строительства двухэтажного дома. Разумный торг возможен. Не упустите свой шанс стать владельцем этого прекрасного участка!


Дата обновления: 08.04.2026

Район:

Куйбышевский

Комнат: 0
ID: 102615
Рейтинг

Описание:

Участок 9 соток на улице Луговой — идеальное место для строительства в экологически чистом районе Ищете идеальное место для строительства дома Участок на улице Луговой — это то, что вам нужно! Участок был приобретён в 2010 году и находится в экологически чистом районе. Здесь нет строений, поэтому вы можете реализовать свои самые смелые идеи. На участке есть все условия для успешного строительства: удобные транспортные пути, позволяющие легко добраться до любой точки города, а также развитая инфраструктура — рядом находятся церковь, школа, детский сад и магазин. Ровный участок обеспечен хорошей проходимостью и плодородностью почвы — всё растёт очень хорошо. Газ подведён к границе участка, что значительно упрощает процесс подключения коммуникаций. Все необходимые документы готовы к сделке. Не упустите возможность стать владельцем участка на улице Луговой!


Дата обновления: 10.10.2025

Район:

Куйбышевский

Комнат: 0
ID: 103645
Рейтинг

Описание:

Участок земли 3 сотки в районе ж/д рынка — ваш шанс для бизнеса или жизни! Предлагается к продаже приватизированный участок земли площадью 3 сот. На участке расположено ветхое строение (половина дома) с отдельным входом. Участок уже оснащён всеми необходимыми коммуникациями: есть электричество, водоснабжение, центральная канализация, а газ проходит вдоль забора. Преимущество данного предложения — развитая инфраструктура и удобная транспортная развязка. В радиусе 500 метров находятся три рынка, школа, детский сад, институт, железнодорожный вокзал, больница и банк. Участок отлично подойдёт как для ведения бизнеса, так и для строительства собственного дома. Не упустите возможность стать владельцем земельного участка в перспективном районе!


Дата обновления: 11.03.2026

Район:

Куйбышевский

Комнат: 0
ID: 103839
Рейтинг

Описание:

Земельный участок в районе «Империи мебели», 50 м от проспекта Богдана Хмельницкого Предлагается к продаже земельный участок площадью 8,5 соток — отличная возможность для строительства собственного дома! На участке уже заложен прочный фундамент под двухэтажный дом размером 10 на 13 метров. Проект дома готов и согласован. Все необходимые коммуникации уже подведены: есть газ, вода, электроэнергия и центральная канализация. Расположение участка — одно из преимуществ: всего 50 метров до проспекта Богдана Хмельницкого, что обеспечивает удобный доступ к основной транспортной артерии района. Это идеальный вариант для тех, кто мечтает о собственном доме в удобном и доступном месте. Не упустите шанс воплотить свои мечты в реальность!


Дата обновления: 17.04.2026

Район:

Куйбышевский

Комнат: 0
ID: 102304
Рейтинг

Описание:

Участок в Куйбышевском районе, ул. Башкирская — идеальное место для строительства вашего будущего дома! Площадь участка — 6 соток. На нём расположен ветхий дом, а также хозпостройки. Все необходимые коммуникации уже подведены: газ, вода (есть колодец), канализация, электричество. Это отличная возможность воплотить в жизнь свои мечты о загородной жизни!


Дата обновления: 16.09.2025

Район:

Куйбышевский

Комнат: 0
ID: 102875
Рейтинг

Описание:

Элитный земельный участок в центре города: идеальное место для строительства вашего будущего дома Предлагается огромный участок площадью 9 соток в самом престижном районе города. Здесь живут лучшие люди республики, а по соседству — успешные и интеллигентные владельцы элитных автомобилей. Участок расположен в районе с отличной ин фраструктурой: парк Щербакова всего в 300 м, а площадь Ленина — в 1,2 км. Участок ещё не приватизирован, но новый владелец сможет легко оформить его в собственность. На участке находится ветхий дом с кадастровым номером, что упрощает процесс оформления. Безопасность в районе на высшем уровне: патрули регулярно проходят по улицам, а во дворе можно оставить ценные вещи без опасения. Это уникальная возможность стать частью престижного района и построить дом своей мечты.


Дата обновления: 17.04.2026


Каталог недвижимости в Донецке и Макеевке - Донецкая Народная Республика