Продается помещение 487 м². - цена 1 800 000 ₽ в Донецкая область.


Продажа помещения Донецкая область район, Донецкий регоин, Донецка, ДНР - Донецкой Народной Республики


487 м²
Общая

Обьявление по недвижимости поможет вам Купить помещение Донецкий регоин, Донецка, ДНР - Донецкой Народной Республики


Описание помещения

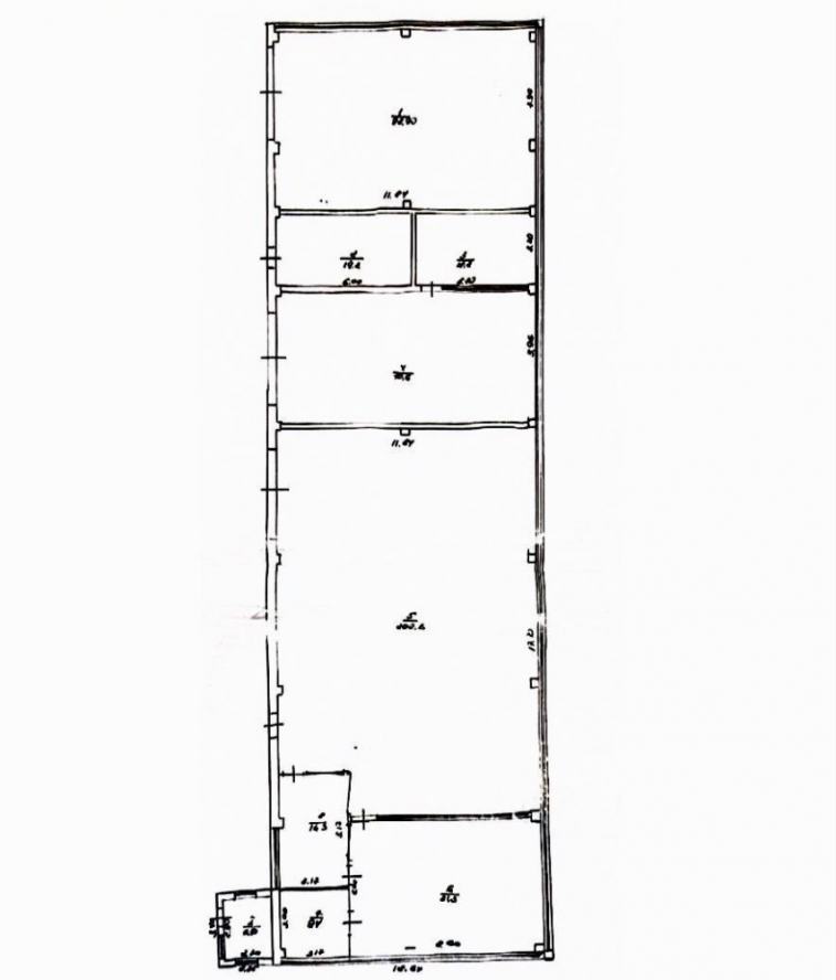
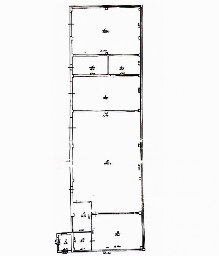
Продаётся складское помещение в г. Докучаевск ➡️ Общая площадь: 487,2 м². ️ Здание капитальное, выполнено из кирпича и железобетонных панелей на прочном бетонном фундаменте. Удобное расположение — асфальтированный подъезд прямо к объекту, рядом трасса. ➡️Внутри здание разделено на секции, с одной стороны, предусмотрен второй этаж, что расширяет возможности использования. ️Отлично подойдёт под склад, производство, мастерские, автосервис или оптовую базу. ➡️Документы РФ.

Агентство 21 Век
+7 (949) 830-07-77+7 (949) 646-05-57



Подписывайтесь, если нужно быть в курсе последних объявлений по продажепомещений в Донецкая область ДНР


Активность объявления:

1 800 000
3 696 ₽ за м²

Агентство 21 Век
+7 (949) 830-07-77+7 (949) 646-05-57

ID объявления № 1025075
Просмотров в поиске: 1368924
Просмотров подробно: 55
Обновлен:  2025-11-20 12:17:11
Добавлен:  2025-11-20 12:17:11

Понравился объект? Поделитесь с близкими

Для профессионалов

«Топы и автоподнятия на Domick.ru и Kupitvdnr.ru»

«Профпоиск»



Топ и автоподнятие, разместив объявление в рекламном кабинете Realbase.estate оно автоматически попадает на 3 сайта сразуRealbase.estate, Domick.ru, Kupitvdnr.ru


На Realbase.estate можно настроить топы и автоподнятия на Realbase.estate, Domick.ru, Kupitvdnr.ru

Подробнее тут


Риелторы с доступом к «Профпоиск» могут предлагать клиентам больше вариантов недвижимости


Бонусом выделяем все ваши новые объявления на Realbase.estate, функция работает бессрочно, на Domick.ru и Kupitvdnr.ru на три дня.


Это поможет вам охватить широкую аудиторию и найти новых клиентов.


C 2010 года Realbase.estate — надёжный источник информации и эффективный инструмент для продвижения объявлений


Мы очень ценим, что вы уделили нам время. Вы великолепны!


Топовые объявления



Район: Буденновский
Комнат: 2
ID: 1026526
Рейтинг

Описание:

Эксклюзив Светлая и уютная квартира в Будённовском районе — ваше новое жильё Агентство недвижимости «Абсолют сервис» предлагает квартиру в Будённовском районе. Преимущества: — квартира в жилом состоянии; — остаётся мебель и техника; — светлая и уютная квартира. С агентством «Абсолют сервис» вы сможете найти идеальное жильё и сделать свою жизнь комфортнее


Дата добавления: 04.12.2025

Район: Киевский
Комнат: 3
ID: 1027185
Рейтинг

Описание:

Агентство недвижимости «Абсолют Сервис» предлагает: трёхкомнатная квартира на улице Освобождения (район протезного завода) — уют, комфорт и продуманная функциональность! Ищете просторное жильё в районе с развитой инфраструктурой? Приглашаем вас познакомиться с трёхкомнатной квартирой, где каждая деталь работает на ваш комфорт. Это отличный выбор для тех, кто хочет сразу заселиться и наслаждаться домашней атмосферой. Основные характеристики: адрес: ул. Освобождения (район протезного завода); тип дома: 9 этажей; этаж: 1‑й из 9; общая площадь: 56 м²; количество комнат: 3. Преимущества квартиры: Качественный ремонт: внимание к деталям и продуманные решения создают атмосферу домашнего тепла и уюта. Частичная меблировка: часть мебели уже включена в предложение — вы сэкономите время и силы на обустройство жилья. Продуманная планировка: просторные комнаты позволяют комфортно разместить семью и организовать пространство под ваши нужды. Удобство первого этажа: лёгкий доступ в квартиру, возможность обустройства входа с придомовой территории. Инфраструктура и локация: Развитая среда: в шаговой доступности — магазины, транспортные развязки, социальные учреждения. Спокойная обстановка: район сочетает преимущества городской жизни с умиротворяющей атмосферой. Транспортная доступность: удобные маршруты общественного транспорта позволяют быстро добраться в любую точку города. Важные детали: подача воды осуществляется по графику (этот нюанс с лихвой компенсируется многочисленными преимуществами квартиры); надёжная конструкция дома обеспечивает долговечность и стабильность жилья. Этот вариант идеально подойдёт тем, кто: ищет трёхкомнатную квартиру для семьи в удобном районе; ценит качественный ремонт и продуманную планировку; хочет минимизировать затраты времени и средств на первичное обустройство жилья; предпочитает квартиры на первом этаже за их практичность и удобство доступа; ищет баланс между городской динамикой и спокойной обстановкой. Не упустите шанс обрести уютное жильё в востребованном районе! Свяжитесь с нами, чтобы: узнать больше деталей о квартире; договориться о просмотре; получить консультацию по оформлению сделки. Агентство недвижимости «Абсолют Сервис» — ваш надёжный проводник в мире недвижимости.


Дата добавления: 08.12.2025

Район: Ворошиловский
Комнат: 4
ID: 1025633
Рейтинг

Описание:

Дом находиться на улице Университетская, через дорогу от кинотеатра Звездочка,10 этаж, 182 м2, без чистовой отделки.


Дата добавления: 25.11.2025

Район: Кировский
Комнат: 2
ID: 1026185
Рейтинг

Описание:

Срочно,цена упалаПродается 2х комн.квартира в микрорайоне Мирный,ул.Туполева.Высокий цоколь,лоджия с подвалом,квартира теплая,сухая,комфортная.Пластиковые окна отличного качества,батареи новые чешский чугун,утепленный линолеум на полах,хорошая кухня-стенка с встроенной современной духовкой и независимой варочной газовой поверхностью.Вода в квартире постоянно,без графика.Заходи и живи.Документы в порядке,в квартире никто не прописан и не проживает,ключи у меня,поэтому показ возможен в любое время.


Дата добавления: 07.12.2025

Район: Пролетарский
Комнат: 2
ID: 1026862
Рейтинг

Описание:

ул. Прожекторная, напротив гипермаркета Moloko. Квартира сдается впервые, и она ждет своих первых жильцов Просторные светлые комнаты обеспечивают комфортное проживание. В квартире установлен современный бойлер для горячей воды, а также насосная станция и накопительная емкость объемом 750 л, что гарантирует стабильное водоснабжение. Цена квартиры 35000₽ + к/у Звоните для получения дополнительной информации или для записи на просмотр. Не упустите возможность снять уютную квартиру в отличном месте


Дата добавления: 25.11.2025

Район: Киевский
Комнат: 0
ID: 1025303
Рейтинг

Описание:

В продаже помещение,100м², Просторная планировка — идеальное решение для различных видов деятельности.Отличное состояние помещения.Индивидуальное газовое отопление — существенная экономия на коммунальных платежах Установлена охранно- пожарная система сигнализации.Отдельный вход.Отличная локация(Транспортная доступность в любой район города.Близость к остановкам общественного транспорта.Хорошая видимость с дорогиУдобный доступ для клиентов.Развитая инфраструктура района)В помещение находился парикмахерский салон(Установлено оборудование профессионального уровня-всё остаётся.Планировка продумана для комфортного размещения рабочих мест.Полная сантехническая разводка: вода выведена во все необходимые зоны помещения) Это помещение идеальное решение для разных сфер деятельности


Дата добавления: 03.12.2025



Похожие объявления



Район:

Донецкая область

Комнат: 0
ID: 1024441
Рейтинг
Агентство Новосел

Описание:

Продам прекрасный большой кирпичный дом 210 м. кв. на Белосарайской Косе, 2 уровня , три спальни ,веранда , гараж , 6 соток приватизированной земли ,внутри отделка дома дорогостоящими породами дерева , 2 с/у. , электроотопление , отличное состояние , от моря 2 минуты , рядом большой продуктовый магазин.


Дата обновления: 03.12.2025

Район:

Донецкая область

Комнат: 0
ID: 1020322
Рейтинг
Агентство 21 Век

Описание:

Продажа действующего помещения, в 3 км. от г. Старобешево.В ангаре установлены пластиковые окна, теплый пол, есть комната под кабинет. Вокруг здания поля. Есть возможность расширения и дополнительного строительства. Присутствует торг по стоимости.


Дата обновления: 25.11.2025