Продается 9 ком. дом 260 м². - цена 20 000 000 ₽ , Капитальная Испалком в Горняцком р-н.


Продажа дома Макеевка - Горняцкий район, ориентир Капитальная Испалком, в Горняцком районе, Макеевка, Донецкой Народной Республики


9 комн.
Дом
260 м²
Общая
1 из 1
Этаж
Тип дома:  Жилой фонд 2011-2020-е
Тип стен:  Шлакоблочный
Планировка:  Раздельная
Санузел:  Раздельный
Ремонт:  Евроремонт; После строителей
Отопление:  Индивидуальное газовое
Бытовая техника:  Кондиционер; Плита
Мультимедиа:  Wi-Fi; Без бытовой техники; Скоростной интернет
Комфорт:  Кондиционер; Подогрев полов; Парковочное место; Мебель на кухне; Гараж; Хоз. помещение, кладовка
Коммуникации:  Газ; Канализация септик; Центральный водопровод; Скважина; Электричество
Инфраструктура:  Детский сад; Аптека; Школа; Остановка транспорта; Отделение почты; Магазин, киоск; Отделение банка, банкомат; Супермаркет, ТРЦ
Меблирование:  Да

Описание дома

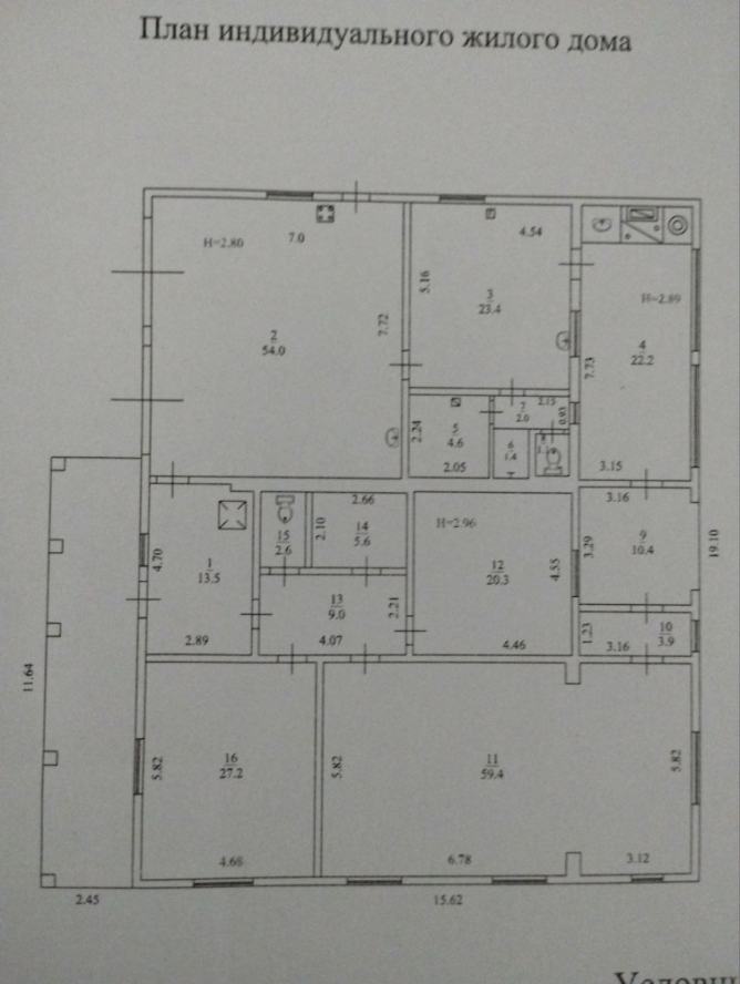
Продажа дома г. Макеевка , Горняцкий р-н, Капитальная( р-н Испалкома). - S 260,6 m2; - 10/100 земли (госакт); - постройка 2020 года; - участок огорожен забором из проф листа на фундаменте и колонами( фагот); - электро ворота на въезде на территорию 4, метра, и в гараже; - стены шлакоблок с утеплением мин ватой; - крыша металлочерепица; - окна пластик; - 3 входа; - гараж на 2 автомобиля; - отопление газовое; - баня на дровах; - закрытая мангальная зона; - теплый пол; - скважина; - запас воды 900 литров.

+7 (949) 339-50-01 +79493243928



Подписывайтесь, если нужно быть в курсе последних объявлений по продаже 9 комнатных домов в Горняцком р-н. г. Макеевки ДНР


Активность объявления:

20 000 000
76 923 ₽ за м²

+7 (949) 339-50-01 +79493243928

ID объявления № 1025362
Просмотров в поиске: 680623
Просмотров подробно: 30
Обновлен:  2025-09-22 10:56:19
Добавлен:  2025-09-22 10:56:19

Понравился объект? Поделитесь с близкими

Для профессионалов

«Топы и автоподнятия на Domick.ru и Kupitvdnr.ru»

«Профпоиск»



Топ и автоподнятие, разместив объявление в рекламном кабинете Realbase.estate оно автоматически попадает на 3 сайта сразуRealbase.estate, Domick.ru, Kupitvdnr.ru


На Realbase.estate можно настроить топы и автоподнятия на Realbase.estate, Domick.ru, Kupitvdnr.ru

Подробнее тут


Риелторы с доступом к «Профпоиск» могут предлагать клиентам больше вариантов недвижимости


Бонусом выделяем все ваши новые объявления на Realbase.estate, функция работает бессрочно, на Domick.ru и Kupitvdnr.ru на три дня.


Это поможет вам охватить широкую аудиторию и найти новых клиентов.


C 2010 года Realbase.estate — надёжный источник информации и эффективный инструмент для продвижения объявлений


Мы очень ценим, что вы уделили нам время. Вы великолепны!


Топовые объявления



Район: Калининский
Комнат: 2
ID: 1025872
Рейтинг

Описание:

Квартира с ремонтом, мебелью и техникой. Высокий цоколь,поменяны проводка и трубы,снаружи утеплена,поменян полностьюпол под напоьным покрытием,окна с дорогой шумоизоляцией.Отличная инфраструктура. все фото реальные. Более детально по телефону.


Дата добавления: 17.10.2025

Район: Ворошиловский
Комнат: 3
ID: 1026284
Рейтинг

Описание:

3 комнатная квартира на бул. Пушкина 4/6. Лифт. Общая площадь 100 квадратов. Сделан дорогой качественный ремонт. Полностью укомплектована. Продажа с мебелью. Документы готовы . Цена 15 000 000 рублей . Торг уместен. АН +79497969080 ( телеграмм). +79495047849 ( звонки ).


Дата добавления: 29.10.2025

Район: Ворошиловский
Комнат: 3
ID: 1026279
Рейтинг

Описание:

Трёхкомнатная квартира в Ворошиловском районе — ваше уютное жильё! Агентство недвижимости «Абсолют сервис» предлагает светлую и уютную 3-комнатную квартиру в Ворошиловском районе — рядом со «Звёздочкой». Квартира расположена на 4 этаже 5-этажного кирпичного дома. Общая площадь — 56 м2. Преимущества: — смежно-проходная планировка, которая позволяет эффективно использовать пространство; — раздельный санузел; — централизованное отопление, проведены газ, электричество, центральный водопровод и центральная канализация; — развитая инфраструктура района — поблизости есть всё необходимое для жизни. С агентством «Абсолют сервис» вы сможете найти идеальное жильё и сделать свою жизнь комфортнее!


Дата добавления: 29.10.2025

Район: Киевский
Комнат: 3
ID: 1025870
Рейтинг

Описание:

Продам 3 х ком 70 м2 квартиру с хорошим ремонтом , комнаты раздельные , есть лоджия и балкон , мебель и техника в подарок , вода по графику, есть бойлер , документы готовы , хозяйка в Донецке , звоните


Дата добавления: 12.10.2025

Район: Макеевка - Червоногвардейский
Комнат: 3
ID: 1025854
Рейтинг

Описание:

Этот просторный, уютный дом. Ждет нового хозяина. Есть летняя кухня площадь 43 м кв., гараж 61 м кв., участок 10 соток.


Дата добавления: 10.10.2025

Район: Ленинский
Комнат: 11
ID: 1022850
Рейтинг

Описание:

продам помещение 1500 м2 участок 10 тысм2, два заезда ,участок огорожен, есть вода,свет,три цехапо переработки сельхоз продукции, 1 цех500 м2 , второй 300 м2 и 3 200 м2 все в рабочем состоянии , есть офисы , магазины, комнаты отдыха , все условия для работы и отдыха , документы готовы , звоните


Дата добавления: 11.09.2025



Похожие объявления