Продается 4 ком. квартира 72 м². - цена 5 500 000 ₽ , ул. Туполева, мирный в Кировском р-н.


Продажа квартиры Кировский район, улица Туполева, ориентир мирный, в Кировском районе, Донецка, ДНР - Донецкой Народной Республики


4 комн.
Квартира
72 м²
Общая
9 м²
Кухня
2 из 9
Этаж
Тип дома:  Жилой фонд 80-90-е
Тип стен:  Панельный
Планировка:  Раздельная
Санузел:  Раздельный
Ремонт:  Жилое состояние
Бытовая техника:  Плита
Коммуникации:  Газ; Центральный водопровод; Центральная канализация
Инфраструктура:  Детский сад; Аптека; Школа; Больница, поликлиника; Центр города; Остановка транспорта; Ресторан, кафе; Отделение почты; Магазин, киоск; Отделение банка, банкомат
Меблирование:  Да

Обьявление по недвижимости поможет вам Купить квартиру в Кировском районе, Донецка, ДНР - Донецкой Народной Республики


Описание квартиры

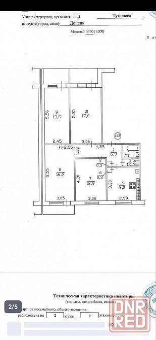
Продается светлая 4-комнатная квартираплощадью 73.2 м2 на 2-м этаже 9-этажного дома улица Туполева. Двасобственника, несовершеннолетних нет, “Обременений нет”, Тихий дом, доброжелаьные соседи семьи с детьми и пенсионеры” . “Готова показать в любое время и в любой день. Звоните, договоримся о просмотре” Не упустите возможность выгодной покупки

Агентство Наш круг
+7 (949) 356-08-05+7 (949) 356-08-05
+7 (918) 856-69-40
Посмотреть все объявления: АН Наш круг


Подписывайтесь, если нужно быть в курсе последних объявлений по продаже 4 комнатных квартир в Кировском р-н. г. Донецка ДНР


Активность объявления:

5 500 000
76 389 ₽ за м²

Агентство Наш круг
+7 (949) 356-08-05+7 (949) 356-08-05
+7 (918) 856-69-40

ID объявления № 1025701
Просмотров в поиске: 1256505
Просмотров подробно: 214
Обновлен:  2026-04-18 00:00:03
Добавлен:  2026-04-18 00:00:03
Понравился объект? Поделитесь с близкими
Недвижимость Донецка ДНР Автоматизация рекламы

Недвижимость Донецка ДНР Автоматизация рекламы

Для профессионалов

«Топы и автоподнятия на Domick.ru и Kupitvdnr.ru»

«Профпоиск»



Топ и автоподнятие, разместив объявление в рекламном кабинете Realbase.estate оно автоматически попадает на 3 сайта сразуRealbase.estate, Domick.ru, Kupitvdnr.ru


На Realbase.estate можно настроить топы и автоподнятия на Realbase.estate, Domick.ru, Kupitvdnr.ru

Подробнее тут


Риелторы с доступом к «Профпоиск» могут предлагать клиентам больше вариантов недвижимости


Бонусом выделяем все ваши новые объявления на Realbase.estate, функция работает бессрочно, на Domick.ru и Kupitvdnr.ru на три дня.


Это поможет вам охватить широкую аудиторию и найти новых клиентов.


C 2010 года Realbase.estate — надёжный источник информации и эффективный инструмент для продвижения объявлений


Мы очень ценим, что вы уделили нам время. Вы великолепны!


Топовые объявления



Размещенно: Новый Дом
Район: Калининский
Комнат: 4
ID: 1029735
Рейтинг

Описание:

В продаже 4к. квартира (бул.Шахтостроией). Квартира требует ремонта, теплая, не угловая. В шаговой доступности вся инфраструктура. Документы РФ, прописанных нет, долгов по коммунальным нет, собственник на сделке. Показы по предвариьной договоренности, звоните.


Дата добавления: 03.04.2026

Размещенно: Уютный Дом
Район: Буденновский
Комнат: 2
ID: 1029554
Рейтинг

Описание:

Продам 2 х ком квартиру по ул щетинина 21, комнаты Раздельные , трубы пластиковые , есть балкон , мебель и техника остается , документы готовы , отличное место для жизни рядом школа , магазины , рынок , остановка транспорта, звоните квартира ждет вас


Дата добавления: 27.03.2026

Размещенно: Квартал Сити
Район: Ворошиловский
Комнат: 3
ID: 1028233
Рейтинг

Описание:

Донецк, Театральный проспект, 11 Количество комнат:3 Общая площадь:50 м2 Жилая площадь:34 м2 Площадь кухни:5.9 м2 Тип дома:Кирпичный Этаж:3 /5 ХРУЩЕВКА Квартира расположена в самом центре города. В пределах 5 минут пешком рядом расположены: центральная площадь города - площадь им. Ленина бульвар им. Пушкина парк им. Щербакова Оперный и драматические театры множество кафе и ресторанов, кинотеатры, ТЦ, БЦ Центральный корпус донецкого национального университета школа и садик городская и областная администрация Дом окружен зеленью, уютный, тихий зеленый дворик с парковкой. Квартира требует ремонта. Все работает: канализация, водопровод и проводка. Но квартира продается под ремонт. Паркет требует реставрации или замены. Новые пластиковые окна в кухне и гостинной (балконная группа), в двух спальнях старые деревянные окна, входная дверь и межкомнатные двери - под замену. Сравнивая цены на квартиры с ремонтом, лучше купить под ремонт и сделать его под себя. Документы (российские) полностью готовы к продаже. Ключи в агентстве недвижимости. О показе нужно будет договариваться заранее.


Дата добавления: 18.02.2026

Размещенно: Абсолют сервис
Район: Киевский
Комнат: 1
ID: 1029904
Рейтинг

Описание:

Эксклюзив. Агентство недвижимости «Абсолют Сервис» предлагает к продаже 1‑комнатную квартиру на ул. Университетской (ориентир — «Донецк Сити»). Квартира расположена на 5‑м этаже 5‑этажного дома. Проведены ремонтные работы: заменены окна, двери, электрика, батареи отопления, санузел почти готов. Обеспечено стабильное водоснабжение. Один собственник, полная юридическая чистота сделки. Благодарим за внимание


Дата добавления: 14.04.2026

Размещенно: Доверие-Сервис
Район: Ленинский
Комнат: 3
ID: 1029513
Рейтинг

Описание:

Продам 3х.ком квартиру, Боссе3/5 , 4 490 900 рублей, торг .Квартира расположена на улице Речной В шаговой доступности остановки общественного транспорта, магазины, рынок и детские сады. Состояние жилое, идеально для комфортного проживания. Просторная раздельная спальня и две смежные комнаты. Санузел раздельный. Все документы готовы к оформлению Звоните: +7 949 352-40-20


Дата добавления: 15.04.2026

Размещенно: Новый Дом
Район: Пролетарский
Комнат: 2
ID: 1029282
Рейтинг

Описание:

В продаже дом в Пролетарском районе (6 капитальная),участок не приватизирован 10 соток, дом в жилом состоянии, газ по улице, водаи канализация централизовано.Документы РФ, собственник на сделке, прописанных нет. Показы по предвариьной договорённости. Звоните АН +7(949)359-68-23.


Дата добавления: 17.04.2026

Недвижимость а Автоматизация рекламы
Недвижимость а Автоматизация рекламы
 


Топ

Агентство недвижимости Доверие-Сервис
Доверие-Сервис
+79493524020, +79493174049

Топ

Агентство недвижимости Активком
Активком
+79493410858

Топ

Агентство недвижимости Time
Time
+79497008855

Топ

Агентство недвижимости Тандем
Тандем
+79493259369



Похожие объявления



Район:

Кировский

Комнат: 4
ID: 1029425
Рейтинг
Агентство Доверие-Сервис

Описание:

Продам 4х комнатную квартиру на Широком, ул. Шутова. Квартира после кап.ремонта, заменены все коммуникации (проводка, трубы.), удобная перепланировка, гардеробная, вода 247. Документы полностью готовы, собственник на сделке.8,5 млн. рублей, торг уместен. Удобное месторасположение, в шаговой доступности: школа, садик, кружки, магазины, транспорт и места для отдыха. 7949 317 40 49 Яна


Дата обновления: 16.04.2026

Район:

Кировский

Комнат: 4
ID: 103625
Рейтинг
Агентство Доверие-Сервис

Описание:

**Дом в Кировском районе (Текстильщик), ул. Бахметьева** Предложите себе жизнь в просторном и уютном доме! Общая площадь — 210 м2, год постройки — 2010. Дом с качественным ремонтом, в нём есть всё необходимое для комфортной жизни. На участке в 10 соток вас ждут фруктовый сад и уютные беседки — идеальное место для отдыха на свежем воздухе. Есть гараж, так что ваш автомобиль будет в безопасности. В доме установлены электрический котёл и камин, который эффективно отапливает два этажа. Также имеется трёхтарифный счётчик и насос с бочкой. Планировка включает 7 комнат, 2 холла и 2 санузла — достаточно места для всей семьи и гостей. Здесь вы сможете создать свой уголок счастья и уюта!


Дата обновления: 14.04.2026

Район:

Кировский

Комнат: 4
ID: 90561
Рейтинг
Агентство Доверие-Сервис

Описание:

Продаётся уютная и светлая квартира, полностью готовая к заселению. Здесь вас встретит качественный ремонт, выполненный с использованием надёжных материалов. Установлены пластиковые окна, в том числе частично с решётками, а также металлическая входная дверь, которая обеспечит вашу безопасность. В квартире есть всё необходимое для комфортного проживания: две смежные комнаты и две раздельные комнаты позволят разместиться всей семьёй или принимать гостей, большая прихожая даст достаточно места для хранения вещей, раздельный санузел, отделанный плиткой, добавит удобства и комфорта. Новые межкомнатные двери и свежий линолеум на основе создают приятную атмосферу. Мебель и техника остаются новым хозяевам — можно сразу заселиться и наслаждаться уютом своего дома. Газовая колонка обеспечит бесперебойную подачу горячей воды. Тихий двор и спокойные соседи создадут ощущение безопасности и покоя. Рядом с домом расположены магазины, аптеки, рынок, школа и детский сад, что особенно удобно для семей с детьми. В шаговой доступности находится автобусная остановка, поэтому вы без труда сможете добраться до любой точки города.


Дата обновления: 17.04.2026

Район:

Кировский

Комнат: 4
ID: 105985
Рейтинг
Агентство Доверие-Сервис

Описание:

Агентство недвижимости «Абсолют Сервис» предлагает к продаже четырёхкомнатную квартиру в Кировском районе — по адресу: ул. Петровского, 123б. Квартира расположена на 5 м этаже 9 этажного панельного дома. Общая площадь — 88,2 м2, площадь кухни — 9 м2. Пространство организовано удобно: три изолированные спальни, просторный зал, раздельный санузел, коридор и кладовка. Отделка: обои на стенах, линолеум на полу, плитка в ванной и туалете. Установлены счётчики на свет и воду. Квартира требует ремонта. Записывайтесь на просмотр — будем рады показать вам будущее жильё! Благодарим за внимание.


Дата обновления: 04.04.2026

Район:

Кировский

Комнат: 4
ID: 91449
Рейтинг
Агентство Доверие-Сервис

Описание:

1 600 000 руб. Дом после разрущений.


Дата обновления: 27.03.2025

Район:

Кировский

Комнат: 4
ID: 99715
Рейтинг
Агентство Доверие-Сервис

Описание:

Квартира в Кировском районе на улице Лизы Чайкиной (рядом с площадью Свободы) Предлагается к покупке просторная и уютная четырёхкомнатная квартира. Расположена на третьем этаже пятиэтажного дома. Планировка порадует своей функциональностью: две спальни, зал, кухня-гостиная, кладовая (которую можно использовать как небольшую гардеробную), коридор и раздельный санузел. В квартире остаётся вся мебель и бытовая техника: холодильник, стиральная машина, микроволновая печь, Wi-Fi роутер, кондиционеры в зале и на кухне. Окна и балкон — металлопластиковые. Район с хорошо развитой инфраструктурой: во дворе — детская площадка, в шаговой доступности — школа, продуктовый магазин и остановка общественного транспорта. Документы в полном порядке, квартира зарегистрирована в Росреестре, никто не прописан.


Дата обновления: 27.11.2025


Каталог недвижимости в Донецке и Макеевке - Донецкая Народная Республика