Продается 4 ком. помещение 666 м². - цена 18 000 000 ₽ , пр. Мира в Калининском р-н.


Продажа помещения Калининский район, ориентир пр. Мира, в Калининском районе, Донецка, ДНР - Донецкой Народной Республики


4 комн.
Помещение
666 м²
Общая
Комфорт:  Парковочное место; Хоз. помещение, кладовка
Коммуникации:  Центральный водопровод; Электричество

Обьявление по недвижимости поможет вам Купить помещение в Калининском районе, Донецка, ДНР - Донецкой Народной Республики


Описание помещения

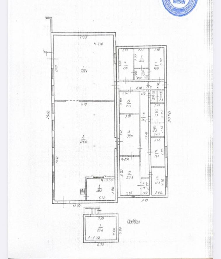
Отдельно стоящее здание с двумя производственными цехами-129 и 176 кв.м. и вспомогаьными площадями около 200 кв.м.-два кабинета, склады, сушилки, кладовые, подсобные помещения, раздевалки. Земля 1227 кв.м., подъездные пути для фуры не предусмотрены. Документы готовы.

Посмотреть все объявления: АН Первый Риелторский Центр


Подписывайтесь, если нужно быть в курсе последних объявлений по продаже 4 комнатных помещений в Калининском р-н. г. Донецка ДНР


Активность объявления:

18 000 000
27 027 ₽ за м²


ID объявления № 1027800
Просмотров в поиске: 913225
Просмотров подробно: 24
Обновлен:  2026-03-24 10:44:31
Добавлен:  2026-03-24 10:44:31
Понравился объект? Поделитесь с близкими
Недвижимость Донецка ДНР Автоматизация рекламы

Недвижимость Донецка ДНР Автоматизация рекламы

Для профессионалов

«Топы и автоподнятия на Domick.ru и Kupitvdnr.ru»

«Профпоиск»



Топ и автоподнятие, разместив объявление в рекламном кабинете Realbase.estate оно автоматически попадает на 3 сайта сразуRealbase.estate, Domick.ru, Kupitvdnr.ru


На Realbase.estate можно настроить топы и автоподнятия на Realbase.estate, Domick.ru, Kupitvdnr.ru

Подробнее тут


Риелторы с доступом к «Профпоиск» могут предлагать клиентам больше вариантов недвижимости


Бонусом выделяем все ваши новые объявления на Realbase.estate, функция работает бессрочно, на Domick.ru и Kupitvdnr.ru на три дня.


Это поможет вам охватить широкую аудиторию и найти новых клиентов.


C 2010 года Realbase.estate — надёжный источник информации и эффективный инструмент для продвижения объявлений


Мы очень ценим, что вы уделили нам время. Вы великолепны!


Топовые объявления



Размещенно: Новый Дом
Район: Калининский
Комнат: 4
ID: 1029735
Рейтинг

Описание:

В продаже 4к. квартира (бул.Шахтостроией). Квартира требует ремонта, теплая, не угловая. В шаговой доступности вся инфраструктура. Документы РФ, прописанных нет, долгов по коммунальным нет, собственник на сделке. Показы по предвариьной договоренности, звоните.


Дата добавления: 03.04.2026

Размещенно: Новый Дом
Район: Калининский
Комнат: 3
ID: 1021600
Рейтинг

Описание:

В продаже 3-к. квартира, Мед. университет (ул. Капитана Ратникова), не угловая, двусторонняя, теплая с положиьной энергетикой.В квартире выполнен капитальный евроремонт: новая медная проводка, пол и стены выровнены по уровню, качественный ламинат, новые дубовые межкомнатные двери, заменены все коммуникации, с/у совмещен c фирменной сантехникой, качественные входные двери, продается с мебелью и частичной техникой. Подъезд чистый (без посторонних запахов), в подъезде установлены м/п окна, отличное расположение дома, в шаговой доступности вся инфраструктура. Показы по предвариьной договоренности, собственник в городе, реальному покупаю - торг на месте. За более подробной информацией звоните АН Новый Дом


Дата добавления: 30.03.2026

Размещенно: Доверие-Сервис
Район: Ленинский
Комнат: 1
ID: 1026668
Рейтинг

Описание:

Квартираухоженная и чистаяв кирпичном доме. Установлены пластиковые окна и надёжная металлическая дверь. В квартире есть горячая вода от газовой колонки. Рядом расположены детский сад, школа, супермаркет, два парка и Соборный храм святых Петра и Февронии. Все документы подготовлены. Звоните:


Дата добавления: 15.04.2026

Размещенно: Абсолют сервис
Район: Киевский
Комнат: 2
ID: 1027114
Рейтинг

Описание:

Эксклюзив Агентство недвижимости Абсолют Сервис приглашаетпредлагает уютную двухкомнатную квартиру в Киевском районе (Гладковка, Караван). Это отличный вариант для тех, кто хочет заехать сразу после покупки жильё с свежим ремонтом готово к заселению Квартира расположена на 1‑м этаже трёхэтажного дома, её общая площадь 44,5 м2. Здесь вас ждут приятные детали, делающие жизнь комфортнее: тёплые полы и пластиковые окна, обеспечивающие шумоизоляцию и сохранение тепла. Район отличается развитой инфраструктурой: в шаговой доступности школы, детские сады, магазины и другие социальные объекты. Удобная транспортная развязка позволит быстро добраться до любой точки города. Этот вариант идеально подойдёт тем, кто ценит: * качественный ремонт и готовность квартиры к проживанию; * практичность и комфорт в деталях; * развитую инфраструктуру и хорошую транспортную доступность. Не упустите шанс обрести своё идеальное жильё Свяжитесь с агентствомАбсолют Сервис , чтобы узнать больше деталей, договориться о просмотре или получить консультацию по оформлению сделки.


Дата добавления: 16.04.2026

Размещенно: Квартал Сити
Район: Ворошиловский
Комнат: 3
ID: 1028233
Рейтинг

Описание:

Донецк, Театральный проспект, 11 Количество комнат:3 Общая площадь:50 м2 Жилая площадь:34 м2 Площадь кухни:5.9 м2 Тип дома:Кирпичный Этаж:3 /5 ХРУЩЕВКА Квартира расположена в самом центре города. В пределах 5 минут пешком рядом расположены: центральная площадь города - площадь им. Ленина бульвар им. Пушкина парк им. Щербакова Оперный и драматические театры множество кафе и ресторанов, кинотеатры, ТЦ, БЦ Центральный корпус донецкого национального университета школа и садик городская и областная администрация Дом окружен зеленью, уютный, тихий зеленый дворик с парковкой. Квартира требует ремонта. Все работает: канализация, водопровод и проводка. Но квартира продается под ремонт. Паркет требует реставрации или замены. Новые пластиковые окна в кухне и гостинной (балконная группа), в двух спальнях старые деревянные окна, входная дверь и межкомнатные двери - под замену. Сравнивая цены на квартиры с ремонтом, лучше купить под ремонт и сделать его под себя. Документы (российские) полностью готовы к продаже. Ключи в агентстве недвижимости. О показе нужно будет договариваться заранее.


Дата добавления: 18.02.2026

Размещенно: Абсолют сервис
Район: Калининский
Комнат: 3
ID: 1029368
Рейтинг

Описание:

Эксклюзив. Агентство недвижимости Абсолют Сервис предлагает к продаже трёхкомнатную квартиру в хорошем жилом состоянии. В квартире остаётся мебель и бытовая техника, установлены два кондиционера. Есть балкон и лоджия. Квартира не угловая, все коммуникации подключены (вода поступает бесперебойно). Отличный вариант для комфортного проживания


Дата добавления: 16.04.2026

Недвижимость а Автоматизация рекламы
Недвижимость а Автоматизация рекламы
 


Топ

Агентство недвижимости Доверие-Сервис
Доверие-Сервис
+79493524020, +79493174049

Топ

Агентство недвижимости Активком
Активком
+79493410858

Топ

Агентство недвижимости Добрый Кот
Добрый Кот
+79495103388; +79494288960

Топ

Агентство недвижимости Ирис
Ирис
+79493616752



Похожие объявления



Район:

Калининский

Комнат: 4
ID: 103516
Рейтинг

Описание:

Дом 90 м2 — комфорт и уют для вашей семьи Продаётся просторный дом общей площадью 90 м2. Преимущества дома: — две спальни, два зала, две кухни, коридор, санузел (туалет и ванна); — есть летняя кухня и баня; — имеется гараж; — отопление с двухконтурным котлом; — вода доступна круглосуточно; — ремонт не требуется, можно заезжать и жить; — вся мебель и техника остаются новым владельцам. Документы готовы к сделке. Отличный вариант для тех, кто мечтает о просторном и уютном доме!


Дата обновления: 28.11.2025

Район:

Калининский

Комнат: 4
ID: 101102
Рейтинг

Описание:

Квартира на проспекте Павших Коммунаров — идеальное жильё для большой семьи! Предложите своей семье комфорт и уют в просторной четырёхкомнатной квартире площадью 85,5 м2. Расположенная на пятом этаже девятиэтажного панельного дома, квартира порадует удобной планировкой: две изолированные спальни, кабинет и зал с лоджией. Окна и лоджия застеклены металлопластиком. В квартире уже есть всё необходимое для жизни — она продаётся с мебелью. Спальни обставлены итальянской мебелью, а в кабинете и второй спальне вас ждёт мягкая мебель из Германии. Техника может остаться по договорённости. Жизнь здесь будет комфортной: во дворе — отсыпанная парковка и детская площадка, а в шаговой доступности — всё, что нужно для жизни. Набережная, школы, детский сад, спортивный комплекс, магазины — всё рядом. Удобная транспортная развязка позволит быстро добраться в любую точку города. Документы готовы к сделке, перепланировок нет, рассматривается ипотека. Станьте владельцем уютной квартиры — создайте семейное гнёздышко своей мечты!


Дата обновления: 08.04.2026

Район:

Калининский

Комнат: 4
ID: 90699
Рейтинг

Описание:

Дом в тихом районе по адресу: — идеальное место для комфортной жизни! На вы найдёте подробное описание этого объекта и сможете оценить все его преимущества. Просторный дом оснащён всеми необходимыми коммуникациями: газом, электричеством, водоснабжением и канализацией. Для современного комфорта предусмотрены интернет и Wi Fi. Особого внимания заслуживают большой сухой подвал и гараж — практичные решения для хранения вещей и автомобиля. Участок площадью 6 соток порадует владельцев собственным огородом и удобным местом для парковки. Расположение дома — одно из его главных достоинств: в шаговой доступности магазины, школа, детский сад, аптека, автобусная остановка, продуктовая база и банк. Доброжелательные соседи и спокойная атмосфера района создадут идеальные условия для жизни. Все документы в порядке, долгов нет — готов к сделке!


Дата обновления: 26.02.2026

Район:

Калининский

Комнат: 4
ID: 106135
Рейтинг

Описание:

Продаётся тёплый уютный кирпичный дом в Калининском районе (улица Казахстанская, ориентир — «Пилот-центр»). Площадь — 65 м2, 4 комнаты, санузел, кухня, прихожая. Дом качественно утеплён, снаружи отделан «короедом» и покрашен, окна — металлопласт. Внутри: гипсокартон и обои, на полу — ковролин, на кухне — линолеум, в санузлах — керамогранит. В санузлах — водяной тёплый пол, отопление — двухконтурный котёл. Есть газ, центральная канализация, электричество, интернет, вода по графику. На участке 5 соток — флигель с летней газифицированной кухней, кирпичный сарай, летний душ. Удобная развязка, рядом остановка общественного транспорта. Документы готовы к сделке.


Дата обновления: 16.04.2026

Район:

Калининский

Комнат: 4
ID: 106190
Рейтинг

Описание:

Уютный двухэтажный дом в Калининском районе, на улице Волочаевской, с гаражом и участком. На первом этаже расположены зал, кухня, прихожая, ванная комната и котельная; на втором — две спальни. Отопление обеспечивается котлом, вода есть почти постоянно, газ рядом с домом, но пока не проведён. Участок — можно обрабатывать: есть огород, много фруктовых деревьев, а также гараж, флигель и хозяйственные постройки. Площадь участка — 14 соток, он пока не приватизирован. Дом требует частичного ремонта — отличная возможность обустроить жильё по своему вкусу!


Дата обновления: 17.04.2026

Район:

Калининский

Комнат: 4
ID: 101551
Рейтинг

Описание:

Дом под ключ в отличном состоянии после капитального ремонта ждёт новых хозяев. В доме заменены все сантехнические трубы и электропроводка, установлены тёплые электрические полы. Есть центральная канализация, газ и постоянно действующая вода. Для вашего удобства и безопасности во дворе уложена плитка, установлены забор, ворота и калитка, а также система видеонаблюдения. В доме есть погреб, новая крыша. Дом продаётся вместе с мебелью и техникой, что позволит вам сразу заселиться и наслаждаться комфортом.


Дата обновления: 06.08.2025


Каталог недвижимости в Донецке и Макеевке - Донецкая Народная Республика